Detailed Design

After the FEED and feasibility study phases of a project, the detailed design phase sets specifications and procedures to ensure successful implementation of project scope customized to client specifications. Our industry-leading team of project managers and engineers has over 300 combined years of analytical engineering experience, helping you achieve a successful and efficient project.

Project Deliverables

Yokogawa's experts in Detailed Design will provide the following deliverables customized for the needs and specifications of your project.

  • Project execution schedule
  • Sample calculations (phase envelope, heating/cooling, flow/pressure, etc)
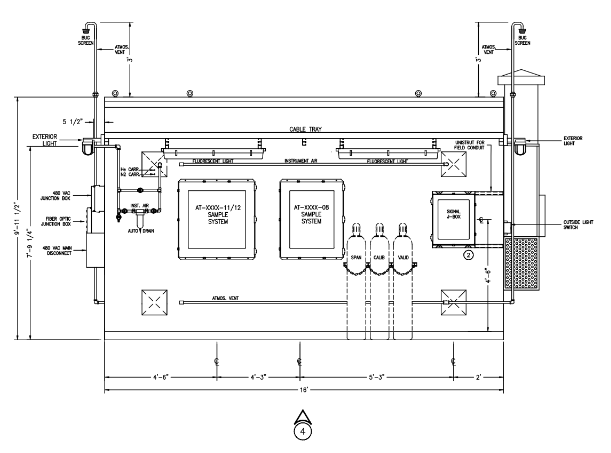
  • Complete sample handling systems (SHS) design (from process to analyzer)
  • Utility design requirements (power load, utility gases, HVAC, etc)
  • Detailed Design Drawings
  • Test procedures and quality documentation (FAT, SAT)
  • I/O Requirements
  • Environmental, safety and local code considerations (NFPA, NEC, UL, etc)
  • Detailed bill of materials / spare parts

Downloads

Looking for more information on our people, technology and solutions?

Contact Us

Top